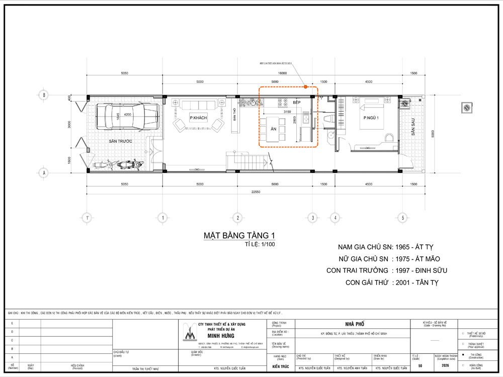
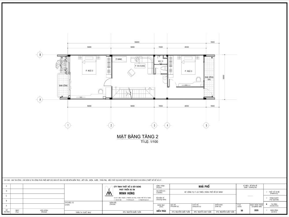
THÔNG TIN DỰ ÁN
CÔNG TRÌNH NHÀ PHỐ ANH CHỊ TRÚC NHƯ - NHÀ TÁI ĐỊNH CƯ KP. ĐÔNG TƯ - P. LÁI THIÊU
Chủ đầu tư: Chị Tuyết Như
Địa điểm: KP Đông Tư, P. Lái Thiêu, TP HCM
Diện tích:
Dưới đây là một số hình ảnh công trình nhà phố tái định cư của nhà anh chị Trúc Như do Minh Hưng thiết kế với gói thầu thi công được miễn phí thiết kế









Minh Hưng chuyên thiết kế nội thất nhà chung cư và thiết kế kiến trúc:
- Biệt thự - Nhà phố
- Nhà hàng – Chuỗi cửa hàng
- Cung cư - Cao ốc văn phòng
- Khách sạn – Resort
- Nhà thờ - Nhà xứ
- Nhà công nghiệp
- Quy hoạch đô thị
- Xây nhà đúc bằng máy in 3D
Mọi chi tiết vui lòng liên hệ:
CÔNG TY TNHH THIẾT KẾ - XÂY DỰNG & PHÁT TRIỂN DỰ ÁN MINH HƯNG
Địa chỉ: 68DC1 KP. Bình Phước B, P.Bình Chuẩn, TX.Thuận An, BD
Xưởng Sx Nội Thất : 10C, Đường Đông Thành, Kp. Đông Thành, Tân Đông Hiêp, Dĩ An, Bình Dương.
Hotline: 0898 547 086
Email: archkienquoc@gmail.com
info@minhhungdc.com
Website: minhhungdc.com



